【令和7年1月16日、販売価格を3500万円から3400万円に改定】
キャッチアップ画像は、もちろんBY村上龍氏から拝借しました(実は未読)
鶴岡市斎藤川原にありますシン・中古物件です。
諸事情により売却することになりました本物件ですが、今どき装備のオンパレードです。
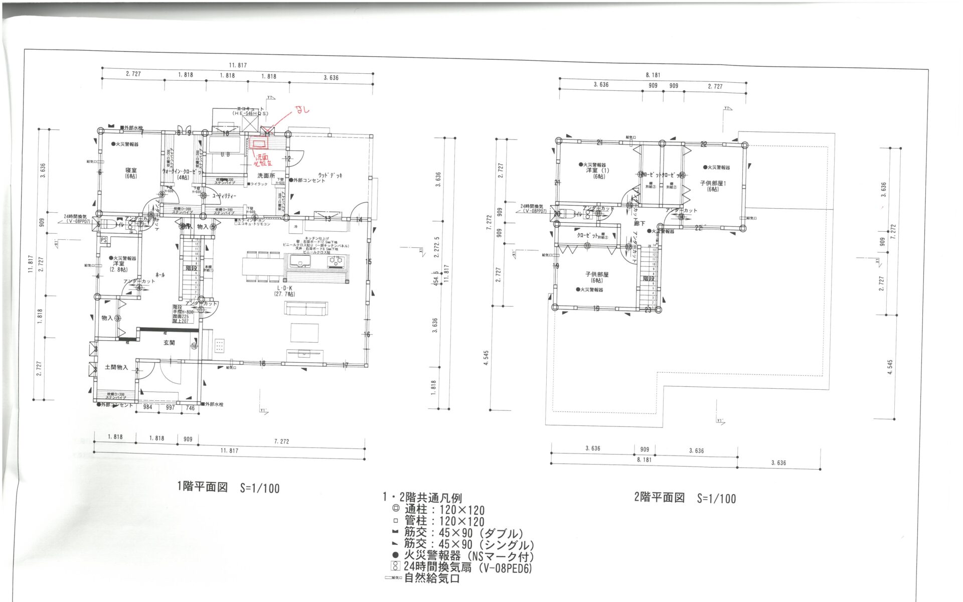
必見なのは、27.7帖のLDK・・・
もうここ一室でいいのではないかと錯覚するほどの広さです。
ご覧になりたい方は是非お問い合わせくださいませm(__)m


























































物件詳細
| 価格(税込) | 3400万円 | 状態 | 売出中 |
|---|---|---|---|
| 種別 | 売戸建 | 仲介手数料 | 1,188,000円 |
| 詳細PDF | PDFの閲覧・ダウンロード | ||
| 所在地 | 鶴岡市斎藤川原間々下173-1 | ||
|---|---|---|---|
| 小学校 | 斎小学校 | 中学校 | 鶴岡第三中学校 |
| 交通 | |||
| 周辺環境 | |||
| 引渡し | 即 | ※指定有の場合 | |
| 平坦地田園風景花火大会鑑賞高断熱住宅バリアフリー緑側専有面積25坪以上築2年以内駐車並列3台南向き3面採光庭電子キー玄関リモコンキードアタッチキーLDK15畳以上2ドア1ルームシステムキッチンアイランドキッチンIHクッキングヒーター耐震ラッチ吊戸棚バストイレ別浴室1坪以上追焚機能浴室トイレ2か所温水洗浄便座三面鏡付洗面化粧台オール電化エコキュートウッドデッキフローリング全居室フローリング複層ガラスウォークスルークローゼットウォークインクローゼットシューズボックスシューズWIC納戸BSTVインターホン即入居可エアコン2台カーテン付全室照明付眺望良好通風良好陽当り良好 | |||
物件情報
| 築年月 | 2022年12月 | 建築面積 | 126.42㎡ |
|---|---|---|---|
| 延べ床面積 | 172.69㎡ | バルコニー | |
| 建物構造 | 木造合金メッキ鋼板ぶき2階建 | ||
| 駐車場 | カーポート2台、青空2~3台可 | ||
| 間取 | 4LDK+DEN | 向き | 南 |
| 間取内容 | 1F・・・LDK27.7、洋6、DEN2.7 2F・・・洋6×3 |
||
| 取引態様 | 専任 | 現況 | 空き |
|---|---|---|---|
| 地目 | 宅地 | ||
| 用途地域 | |||
| 都市計画 | 市街化調整区域 | 地勢 | 平坦 |
| 土地面積 | 422.27㎡ | 土地面積計測方式 | 公簿 |
| 建ぺい率 | 70% | 容積率 | 200% |
| 土地権利 | 所有権 | 接道状況 | 1方 |
| 接道方向1 | 南 | 接道間口1 | 10.95m |
| 接道種別1 | 市道 | 接道幅員1 | 約6m |
| 法令上の制限 | 景観法 | ||
| その他制限事項 | |||
| 物件番号 | k140 | ||
| 掲載期限日 | 次回更新予定日 | ||
| 備考 | 売主の契約不適合免責 境界非明示・原状現況有姿での引き渡し。 |
||
物件地図
※物件掲載内容と現況に相違がある場合は現況を優先と致します。





